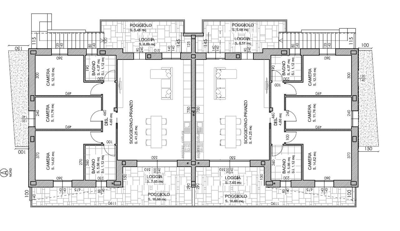
vendita Via Roma 5 vani 105mq

285.000,00 €
0 Piace
0 Piace

Alle porte del centro paese in bellissima posizione residenziale.
Sono aperte le vendite di nuovi appartamenti su piccolo palazzetto signorile di sole 4 unità tutte con ingresso indipendente.
Ti possiamo offrire un appartamento al piano terra con un bel giardino che fa da contorno, garage e posto auto all´interno della propria abitazione oppure al piano primo ed ultimo un appartamento con belle ed ampie terrazze al quale si accede attraverso una scala autonoma che da accesso privato alla propria abitazione.
Le abitazioni verranno consegnate in classe A4, con metodo di costruzione nuovo quale case green, sistema di costruzione con caratteristiche tecniche a basso consumo energetico.
Case che respirano !! con sicurezza di isolamento termico e traspirante oltre che acustico.
Acquista con qualità certificata!!
Chiamaci per avere tutte le informazioni e dettagli in merito!!
Finiture interne molto curate con possibilità di avere legno ovunque per dare omogeneità a tutta l´abitazione per adattarla poi ai colori di rivestimenti con scelta a cura del cliente per personalizzare la propria casa.
Introvabile soluzione !! chiamaci
La ns. agenzia puó seguirti con serietà e disponibilità in ogni passo del tuo acquisto e anche della tua vendita

Classe Energetica A4 EP Kwh/mq anno
Prezzo Euro a partire da EURO 285.000,00 per l´unità a 2 camere
Nostro Rif. SAK13_E

Se per acquistare questo immobile hai la necessità di vendere prima un altro immobile, non preoccuparti perché ce ne occuperemo noi, seguendoti passo a passo sia nella vendita che nel successivo acquisto.

Si precisa che l´indirizzo esposto in pubblicità, per indicare la zona in cui si trova l´immobile in vendita, è puramente indicativo, al fine di salvaguardare la privacy del proprietario.

Per maggiori informazioni tel. 041.58.01.435 - cell. 393.96.30.883 –
Email: [email protected] - Sito : https://www.visioneimmobiliare.it


CLASSE ENERGETICA:

Accessori:
Aria Condizionata, Cassaforte, Cancello Elettrico, Doppi Vetri, Impianto Fotovoltaico, Impianto Satellitare, Ingresso Indipendente, Passaggio Automobilistico, Passaggio Pedonale, Porta Blindata, Tapparelle Elettriche, Video Citofono

  • PropostaOffro
  • ContrattoVendita
  • Prezzo285.000,00 €
  • Anno2024
  • Vani5
  • Numero piani2
  • Mq box15
  • Mq terrazzo38
  • Mq totali105
  • Camere2
  • Camere doppie1
  • Camere singole2
  • Bagni2
  • Terrazzi1
  • Posti auto1
  • Unità condominiali4
  • Classe energeticaA4
  • StatoIn costruzione
  • AscensoreNo
  • Tipo costruzioneSignorile
  • CucinaAngolo cottura
  • GiardinoPrivato
  • RiscaldamentoAutonomo
  • PanoramaVista aperta
  • AccessoriAria condizionata, cassaforte, cancello elettrico, doppi vetri, impianto fotovoltaico, impianto satellitare, ingresso indipendente, passaggio automobilistico, passaggio pedonale, porta blindata, tapparelle elettriche, video citofono
  • PortineriaNo
  • BoxSi
  • ProvinciaVenezia
  • ComuneSalzano
  • IndirizzoVia roma
  • Data18-08-2025 06:37:55
  • CodiceEA-B4888B