vendita via Romana quadrilocale 140mq

310.000,00 €
0 Piace
0 Piace

CAPANNORI CENTRO terratetto centrale in classe ´´B´´, corredato da giardino e due posti auto.
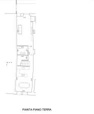
La residenza si compone da soggiorno, disimpegno, cucina, bagno e ripostiglio, a mezzo di scala interna si accede al reparto notte dove troviamo due camere matrimoniali e un bagno, sempre a mezzo di scala si accede al piano mansardato composto da camera singola, bagno, studio e vano ad uso ripostiglio.
Si tratta di una ristrutturazione totale di un grande fabbricato e ridiviso in tre unità immobiliari.
NB: le foto sono rendering solo a scopo dimostrativo.
Possibilità di scegliere la pavimentazione.
CLASSE ENERGETICA: B 35 kWh/m3 a

  • PropostaOffro
  • ContrattoVendita
  • Prezzo310.000,00 €
  • Anno2025
  • Vani4
  • Mq giardino35
  • Mq totali140
  • Camere3
  • Camere doppie2
  • Camere singole1
  • Bagni3
  • Terrazzi1
  • Posti auto2
  • Classe energeticaB
  • Classe energetica (ipe)35.0
  • StatoNuovo
  • AscensoreNo
  • Tipo costruzioneSignorile
  • CucinaAbitabile
  • GiardinoPrivato
  • RiscaldamentoAutonomo
  • PortineriaNo
  • ProvinciaLucca
  • ComuneCapannori
  • IndirizzoVia romana
  • Data27-08-2025 05:48:48
  • CodiceEA-0B5B01
Sist3ma.it
Via Delle Ville 493 - Capannori