vendita VIA SANDRO PERTINI quadrilocale 150mq

480.000,00 €
0 Piace
0 Piace

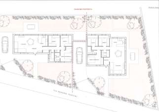
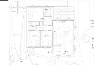
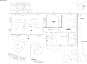
LURAGO MARINONE posizione centrale, proponiamo su lotto di terreno di circa mq. 450 VILLA INDIPENDENTE in piccolo contesto residenziale. Il progetto offre la possibilità di edificare una VILLA SINGOLA DISPOSTA SU UN PIANO e composta da: ingresso, soggiorno con cucina abitabile con possibilità di chiusura o creare un luminoso ambiente unico, 3 camere da letto e 2 bagni per una superficie di mq. 110. Ripostiglio e porticato esterno. Box doppio e ampia cantina al piano terra. Giardino privato. EURO. 480.000,00.
CLASSE ENERGETICA:

  • PropostaOffro
  • ContrattoVendita
  • Prezzo480.000,00 €
  • Vani4
  • Mq giardino300
  • Mq totali150
  • Camere3
  • Bagni2
  • Unità condominiali1
  • Classe energeticaNc
  • StatoProssima realizzazione
  • AscensoreNo
  • Tipo costruzioneSignorile
  • CucinaAbitabile
  • GiardinoPrivato
  • RiscaldamentoAutonomo
  • PanoramaVista aperta
  • PortineriaNo
  • BoxNo
  • ProvinciaComo
  • ComuneLurago marinone
  • IndirizzoVia sandro pertini
  • Data18-08-2025 06:37:55
  • CodiceEA-27CDC5
Bb studio sas
Via Cesare Battisti 22/b - Erba