vendita Via Sirtori 5 vani 160mq

110.000,00 €
0 Piace
0 Piace

Dati annuncio : Vendita vendita, Marsala

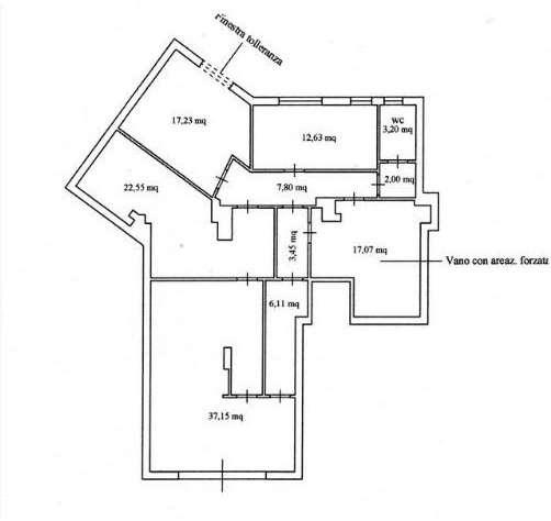
RIF.V1212 - In vendita a Marsala, in Via Sirtori (centro). Locale commerciale, utilizzabile anche come ufficio, di 160 mq al piano terra, composto da 5 vani, ripostiglio e servizio. Area condominiale con diritto di parcheggio riservata. Zona con forte traffico veicolare. Richiesta EURO 110.000,00 trattabili. [Disponibile anche per l´affitto, rif. A1067]
CLASSE ENERGETICA: D

Accessori:
Ripostiglio

  • PropostaOffro
  • ContrattoVendita
  • Prezzo110.000,00 €
  • Vani5
  • Mq totali160
  • Bagni1
  • Classe energeticaD
  • AscensoreNo
  • AccessoriRipostiglio
  • PortineriaNo
  • ProvinciaTrapani
  • ComuneMarsala
  • IndirizzoVia sirtori
  • Data11-10-2025 06:11:44
  • CodiceEA-E28B7B
Dieffecasa
Piazza Giacomo Matteotti 15 - Marsala