vendita VIA VALISETTA bilocale 63mq
Dati annuncio : Vendita vendita, Alzate Brianza
Eleganti soluzioni abitative in classe energetica A3, situate in una posizione privilegiata, si trovano in un´area verde antistante il centro, garantendo tranquillità senza rinunciare alla comodità dei servizi. Ottima esposizione e conformazione pianeggiante, ideali per un comfort abitativo superiore. Un´opportunità perfetta per chi cerca efficienza energetica, benessere e qualità della vita.
Il progetto prevede una moderna ed elegante palazzina composta di 6 unità e comprensiva di bilocale, trilocale e quadrilocale al piano terra con giardino e bilocale, trilocale e quadrilocale al piano primo con terrazzi. Tutti gli appartamenti avranno a disposizione con autorimesse singole o doppie.
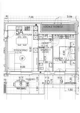
APPARTAMENTO PIANO PRIMO BILOCALE CON TERRAZZO 5A: soggiorno, cucina a vista, disimpegno notte con angolo lavatrice, camera matrimoniale, bagno, terrazzo. Prezzo EURO. 185.000,00 + iva comprensivo di autorimessa. Possibilità acquisto BILOCALE 2A piano terra con giardino privato. EURO. 190.000,00 + iva compreso di autorimessa
CLASSE ENERGETICA:
Accessori:
Cancello Elettrico, Impianto Fotovoltaico, Impianto Satellitare, Passaggio Automobilistico, Passaggio Pedonale, Porta Blindata, Video Citofono
- PropostaOffro
- ContrattoVendita
- Prezzo185.000,00 €
- Vani2
- Numero piani2
- Piano1
- Mq box17
- Mq totali63
- Camere1
- Bagni1
- Unità condominiali6
- Classe energeticaA3
- StatoProssima realizzazione
- AscensoreNo
- Tipo costruzioneSignorile
- CucinaA vista
- GiardinoNo
- PanoramaVista aperta
- AccessoriCancello elettrico, impianto fotovoltaico, impianto satellitare, passaggio automobilistico, passaggio pedonale, porta blindata, video citofono
- PortineriaNo
- BoxSi
- ProvinciaComo
- ComuneAlzate brianza
- IndirizzoVia valisetta
- Data28-10-2025 05:13:27
- CodiceEA-FD2CBE











