Via Calzolara 5 vani 110mq

363.000,00 €
0 Piace
0 Piace

Dati annuncio : Vendita Pentavani, Valsamoggia

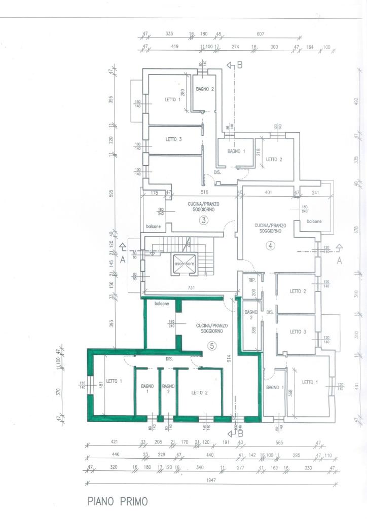
RIF. B175 VALSAMOGGIA (Loc. BAZZANO) - IN COSTRUZIONE CON CONSEGNA ENTRO FINE 2026
In nuova palazzina di sole 7 UNITA´ in ´´classe energetica A4´´ immersa nel verde, comoda al centro commerciale ´´Il Melograno´´ e a tutti i servizi, proponiamo in vendita APPARTAMENTO al 1° piano con ASCENSORE.
L´immobile è composto da soggiorno con angolo cottura e ampio BALCONE ABITABILE COPERTO, 3 CAMERE da letto, 2 BAGNI finestrati, GARAGE e POSTO AUTO PRIVATO compresi.
Le rifiniture saranno di elevata qualità, Riscaldamento a pavimento autonomo, impianto fotovoltaico, tapparelle elettriche e infissi Finstral, zanzariere, impianto di climatizzazione a pompa di calore in zona giorno e notte, ventilazione meccanica controllata, insonorizzazione pareti di ultima generazione.
Possibilità di personalizzare gli ambienti, le rifiniture, i pavimenti e rivestimenti.
Tutte le unità sono già comprensive di garage e posto auto di proprietà.
Su questo intervento in classe energetica A4 è possibile accedere ad un mutuo green, un prodotto agevolato rivolto a chi acquista case ecosostenibili con un risparmio considerevole in termini di interessi.
Palazzina B - Alloggio 5 - CANTIERE in NOSTRA ESCLUSIVA - € 363.000 - Info, capitolato e planimetrie presso Ufficio di Bazzano tel. 051/832830 e-mail:[email protected]

IMPORTANTE: le caratteristiche tecniche, la disposizione interna e gli accessori indicati, potrebbero, in alcuni casi essere diversi dall’effettivo stato di fatto dell’immobile. A causa delle difformità dei dati pubblicati dai vari portali, l’Agenzia Immobiliare declina ogni responsabilità per eventuali involontari incoerenze. Si precisa che le descrizioni sopra riportate non rappresentano alcun impegno contrattuale. Per garantire la privacy, l’indirizzo può non rispecchiare esattamente l’ubicazione dell’immobile ed è utile al solo fine di fornire un riferimento generico per la su localizzazione ed un ausilio alla consultazione.


  • PropostaOffro
  • ContrattoVendita
  • Prezzo363.000,00 €
  • Anno2026
  • Vani5
  • Numero piani1
  • Mq totali110
  • Classe energeticaA+
  • Classe energetica (ipe)0.0
  • AscensoreNo
  • TerrazzoNo
  • GiardinoNs
  • CantinaNo
  • ProvinciaBologna
  • ComuneValsamoggia
  • IndirizzoVia calzolara
  • Data09-10-2025 06:03:17
  • CodiceEA-FAACD9