VIA CAVOUR bilocale 60mq

140.000,00 €
0 Piace
0 Piace

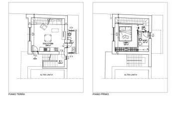
In zona CENTRALE, COMODA CON TUTTI I PRINCIPALI SERVIZI e vicino alla SS 36 in direzione Milano Monza Lecco, proponiamo, in tipica corte brianzola, APPARTAMENTO INDIPENDENTE DI DUE LOCALI di ca. mq 60, IN FASE DI TOTALE RISTRUTTURAZIONE. La soluzione è così composta: PIANO TERRA con ingresso, soggiorno con cucina a vista e servizio; scala interna che conduce al PIANO PRIMO con camera matrimoniale e SECONDO SERVIZIO FINESTRATO. SOTTOTETTO DI PROPRIETA´. Riscaldamento autonomo A PAVIMENTO, persiane e infissi di ultima generazione, predisposizione di aria condizionata. Possibilità scelta capitolato. RIF. VERANO B.12 - EURO 140.000,00 Classe Energetica: C - IPE: 0.00kWh/mq anno

  • PropostaOffro
  • ContrattoVendita
  • Prezzo140.000,00 €
  • Vani2
  • Numero piani1
  • Piano13
  • Mq totali60
  • Camere1
  • Bagni1
  • Classe energeticaC
  • StatoRistrutturato
  • AscensoreNo
  • Tipo costruzioneResidenziale
  • CucinaAngolo cottura
  • TerrazzoNo
  • GiardinoComune
  • CantinaNo
  • RiscaldamentoAutonomo
  • ArrediNon arredato
  • BoxNessuno
  • ProvinciaMonza e brianza
  • ComuneVerano brianza
  • IndirizzoVia cavour
  • Data23-08-2025 05:56:31
  • CodiceEA-F26792