Via Damiano Chiesa CENTRO CITTA´ monolocale 310mq

3.500,00 €
0 Piace
0 Piace

Dati annuncio : Affitto Monovano, Grosseto

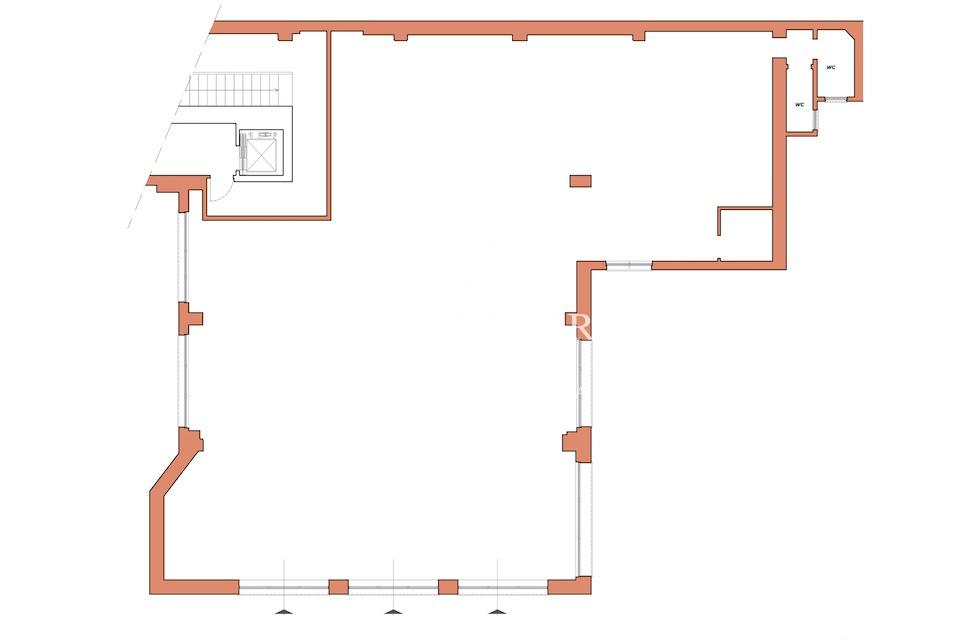
D/CD2946 - Nella zona centrale di Grosseto, in Via Damiano Chiesa, al piano terra in corte interna di elegante palazzina di nuova costruzione, affittasi ufficio di 310 Mq costituito da un ampio vano con doppi servizi.
Possibilità acquisto garage al piano seminterrato .
Classe Energetica: - - IPE: 0.00kWh/mq anno

  • PropostaOffro
  • ContrattoAffitto
  • Prezzo3.500,00 €
  • Vani1
  • Piano1
  • Mq totali310
  • Bagni2
  • Unità condominiali1
  • StatoNuovo
  • Tipo costruzioneCommerciale
  • TerrazzoNo
  • GiardinoNessuno
  • CantinaNo
  • RiscaldamentoAutonomo
  • ArrediNon arredato
  • BoxNessuno
  • DisponibilitLibero
  • ProvinciaGrosseto
  • ComuneGrosseto
  • IndirizzoVia damiano chiesa
  • Data05-07-2025 05:50:34
  • CodiceEA-BA273E