Via Davide Lazzeretti CASALONE trilocale 921mq

550.000,00 €
0 Piace
0 Piace

Dati annuncio : Vendita Trivani, Grosseto

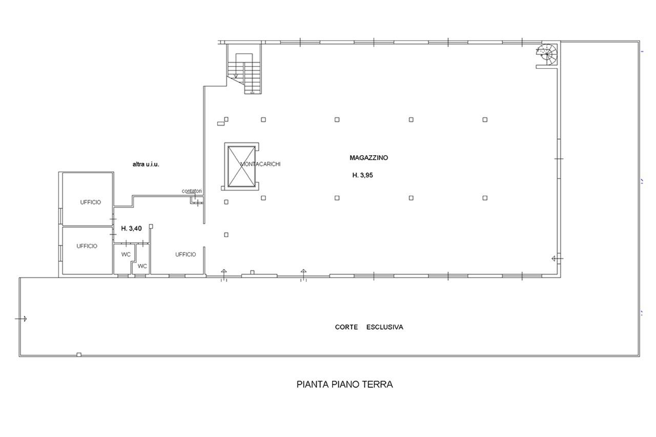
D/PD2518 - Capannone ad uso artigianale di ampia metratura 908 MQ su due livelli con tre ingressi. Piano terra è di 508 Mq e piano primo di 400 Mq, il fabbricato è circondato da corte privata. Presente il montacarichi.

  • PropostaOffro
  • ContrattoVendita
  • Prezzo550.000,00 €
  • Vani3
  • Numero piani2
  • Piano13
  • Mq totali921
  • StatoBuono
  • AscensoreSi
  • Tipo costruzioneCommerciale
  • TerrazzoNo
  • CantinaNo
  • ArrediNon arredato
  • BoxNessuno
  • DisponibilitLibero al rogito
  • ProvinciaGrosseto
  • ComuneGrosseto
  • IndirizzoVia davide lazzeretti
  • Data05-07-2025 05:50:34
  • CodiceEA-C1C21F