E' in corso la verifica sull'accuratezza dei dati del post
Via delle Rose trilocale 100mq
1.500,00 €
0 Piace
0 Piace
Dati annuncio : Affitto Trivani, Bologna
Giardini Margherita - Via delle rose
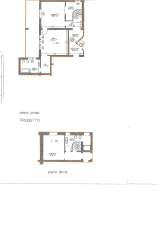
In signorile stabile con ascensore appartamento su due livelli completamente arredato con affacci sul verde. Ingresso, soggiorno, cucinotto, due camere, doppi servizi, soppalco uso studio, lavanderia, terrazza.. Riscaldamento centralizzato con contacalorie. Libero subito. Volendo posto auto La proprietà non prende in considerazione contratti con studenti, contratti brevi, e contratti per b&b.
- PropostaOffro
- ContrattoAffitto
- Prezzo1.500,00 €
- Anno1960
- Vani3
- Numero piani3
- Mq terrazzo15
- Mq totali100
- Camere2
- Bagni2
- Classe energeticaVa
- Classe energetica (ipe)0.0
- StatoBuono
- AscensoreSi
- CucinaCucinotto
- TerrazzoSi
- GiardinoNd
- CantinaNo
- RiscaldamentoContacalorie
- ArrediArredato
- BoxSi
- Spese condominiali300.0
- ProvinciaBologna
- ComuneBologna
- IndirizzoVia delle rose
- CodiceEA-CE7ECC






