via Enrico Fermi 34 6 vani 298mq

143.000,00 €
0 Piace
0 Piace

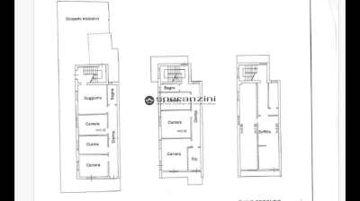
Fossombrone in zona residenziale non molto lontana dal centro storico cittadino e facilmente raggiungibile dalle principali vie di comunicazione proponiamo in vendita immobile completamente indipendente cielo-terra libero su 3 lati con circa 100 mq di scoperto esclusivo. al piano terra troviamo la zona giorno attualmente divisa in ingresso, soggiorno, cucina; due camere da letto e bagno finestrato; al primo piano la zona notte con 3 camere da letto, ripostiglio e bagno finestrato. completano la proprietà ampia soffitta alle stato grezzo al secondo piano, cantina e ct al piano primo sottostrada e magazzino al piano terra.
ideale per una famiglia con esigenze di spazio o per ricavare due unità abitative vista la presenza di doppio ingresso.
l´immobile seppur vivibile necessita di un intervento di riqualificazione.
Classe Energetica: G - IPE: 175.00kWh/mq anno

  • PropostaOffro
  • ContrattoVendita
  • Prezzo143.000,00 €
  • Vani6
  • Numero piani3
  • Piano13
  • Mq giardino97
  • Mq totali298
  • Camere5
  • Bagni2
  • Classe energeticaG
  • Classe energetica (ipe)175.0
  • StatoAbitabile
  • AscensoreNo
  • Tipo costruzioneResidenziale
  • TerrazzoNo
  • GiardinoPrivato
  • CantinaSi
  • RiscaldamentoAutonomo
  • ArrediNon arredato
  • DisponibilitLibero
  • ProvinciaPesaro e urbino
  • ComuneFossombrone
  • IndirizzoVia enrico fermi 34
  • Data18-08-2025 06:03:15
  • CodiceEA-C31B25