Via Fratelli Ugoni 1716mq

980.000,00 €
0 Piace
0 Piace

Dati annuncio : Vendita Locali commerciali, Brescia

BRESCIA CENTRO, grande potenzialità commerciale e visibilità garantita.
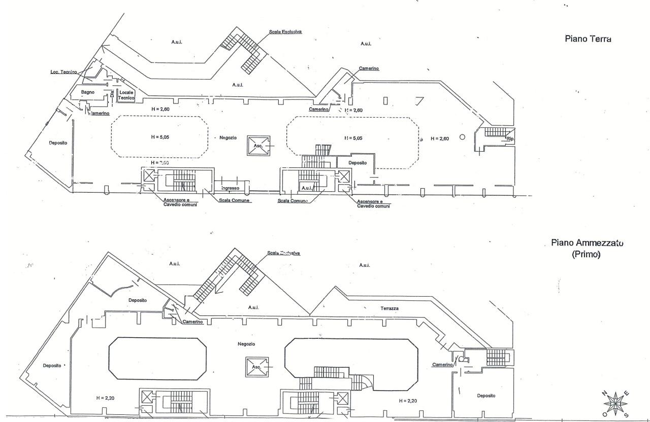
Su strada di fortissimo passaggio, ampio negozio di 1700 mq disposti su 3 livelli, con ascensore.
4 vetrine fronte strada.
Al piano terra è presente un´area commerciale di 640 mq con servizi, deposito e locale tecnico.
Al primo piano vi è un´ulteriore spazio di 500 mq con deposito e camerini.
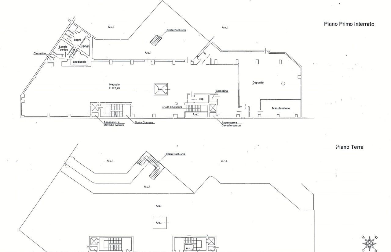
Completa l´immobile un ampio piano interrato, anch´esso commerciale con camerini, servizi, deposito e locale di manutenzione.
L´immobile è perfetto per qualsiasi attività commerciale e anche per attività di ristorazione, poiché dotato di canna fumaria.
La posizione centrale lo rende unico nel suo genere.
Classe G - 215,56 Kwh/mqa.le e anche per attività di ristorazione, poiché dotato di canna fumaria. La posizione centrale lo rende unico nel suo genere. Ottimo investimento. Classe G - 215,56 Kwh/mqa.

  • PropostaOffro
  • ContrattoVendita
  • Prezzo980.000,00 €
  • Anno1970
  • Numero piani3
  • Mq totali1716
  • Bagni5
  • Classe energeticaG
  • Classe energetica (ipe)0.0
  • StatoBuono
  • AscensoreSi
  • TerrazzoNo
  • GiardinoNs
  • CantinaNo
  • RiscaldamentoCentralizzato
  • ProvinciaBrescia
  • ComuneBrescia
  • IndirizzoVia fratelli ugoni
  • Data17-07-2025 05:35:14
  • CodiceEA-BA5A1E