Via salicello 1 quadrilocale 88mq

310.000,00 €
0 Piace
0 Piace

Dati annuncio : Vendita Quadrivani, Castelnuovo Magra

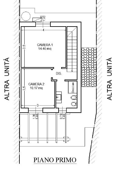
Castelnuovo Magra, località Molicciara. In zona centrale, vicino a tutti i servizi ma defilata dal traffico veicolare, proponiamo villetta a schiera di nuova costruzione in edificio trifamiliare. Unità B- Villetta elevata a due piani fuori terra – Piano terreno - Ingresso su ampio soggiorno con cucina a vista, disimpegno e bagno; Piano Primo – due camere e bagno. Giardino su tre lati e due posti auto di proprietà. Costruzione nel rispetto delle ultime normative in materia di risparmio energetico.
Particolari di costruzione:
- Tutte le pareti di tamponatura di facciata (compreso travi e pilastri) saranno
rivestite con cappotto termico in Eps spessore 8 cm;
- Pannello isolante a tetto, posto sotto il manto di copertura, del tipo “Stitodac”
spessore 8 cm.;
- Finestre e porte finestre in PVC (pasta bianca liscia) con vetro camera 4 + C con
Argon + 4 be ;
- Impianto termico molto performante, costituito da: a) piastra radiante a
pavimento – b) Pompa di calore + accumulatore acqua tecnica Atherma 300 Lt
oppure 500 Lt (marca Daikin) );
- Impianto fotovoltaico per la produzione di energia elettrica da 3 Kw, completo di
: a) pannelli staffati a tetto – b) inverter – c) quadro elettrico dedicato.

  • PropostaOffro
  • ContrattoVendita
  • Prezzo310.000,00 €
  • Anno2025
  • Vani4
  • Numero piani1
  • Mq box25
  • Mq giardino71
  • Mq totali88
  • Camere2
  • Bagni2
  • Posti auto2
  • Classe energeticaA+
  • Classe energetica (ipe)0.0
  • StatoIn costruzione
  • AscensoreNo
  • CucinaAngolo cottura
  • TerrazzoNo
  • GiardinoNd
  • CantinaNo
  • BoxSi
  • ProvinciaLa spezia
  • ComuneCastelnuovo magra
  • IndirizzoVia salicello 1
  • Data05-09-2025 06:04:06
  • CodiceEA-4948B5