Via San Paolino 5 vani 170mq
640.000,00 €
0 Piace
0 Piace
Dati annuncio : Vendita Pentavani, Lucca
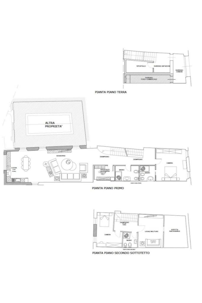
Lucca , centro storico , appartamento completamente ristrutturato di complessivi 170 mq disposto su due piani primo e secondo con ingresso indipendente al piano terra. Si compone al piano terra da ingresso e locale ripostiglio, al piano primo ampio soggiorno con cucina-pranzo, una camera matrimoniale con bagno privato oltre a un vano lavanderia/ripostiglio e bagno, tramite scala interna si accede al secondo piano costituito da una camera, bagno e una stanza pluriuso ad uso soffitta e locale ripostiglio nel sottotetto. Pronta consegna €.640.000.Rif.6363
- PropostaOffro
- ContrattoVendita
- Prezzo640.000,00 €
- Vani5
- Numero piani2
- Mq totali170
- Camere2
- Bagni3
- Classe energeticaE
- Classe energetica (ipe)0.0
- StatoRistrutturato
- AscensoreNo
- CucinaAbitabile
- TerrazzoNo
- GiardinoNs
- CantinaNo
- ProvinciaLucca
- ComuneLucca
- IndirizzoVia san paolino
- Data01-09-2025 05:56:48
- CodiceEA-41EE8A

Agenzia immobiliare fusca
Viale Puccini 461 - Lucca