via Sant´ Andrea CENTRO bilocale 65mq

Dati annuncio : Affitto Bivani, Viareggio
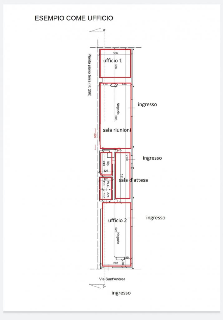
AFFITTASI Viareggio centro, via Sant´Andrea n. 184, locale commerciale di 60 mq circa , con n. 1 bagno (disabili), n. 1 spogliatoio con doccia. Numero 4 ingressi. Possibilità di utilizzo di numero 2 stanze separate con ognuna un ingresso privato, oltre ad un piccolo spazio comune da poter adibire a sala d´ attesa.
Il fondo commerciale è stato completamente ristrutturato con impianti a norma e bagno disabili.
Gli infissi esterni, saranno montati tutti nuovi e certificati.
Il condominio di cui l´immobile in oggetto fa parte, verrà completamente riqualificato.
Posizionato in pieno centro, è interessante da locare sia come ambulatori di fisioterapisti /negozio con magazzino/uffici di assicurazioni /centro estetico....
Richiesta euro 900,00 al mese più euro 100,00 per le spese di condominio.
Richiesti numero 2 mesi di cauzione. Per informazioni chiamare il 3387705705
Agenzia immobiliare Toscana
via A. Fratti, 412 Viareggio (LU)
058431101 3387705705.
Chiamaci per un sopralluogo al tre tre otto sette sette zero cinque sette zero cinque
Ti Aspettiamo !!!
L´indirizzo dell´immobile e la posizione sulla mappa sono un ausilio nell´individuazione della zona rispettando la privacy dei venditori.
- PropostaOffro
- ContrattoAffitto
- Prezzo900,00 €
- Vani2
- Piano1
- Mq totali65
- Bagni1
- StatoNuovo
- Tipo costruzioneCommerciale
- TerrazzoNo
- GiardinoNessuno
- CantinaNo
- ArrediNon arredato
- BoxNessuno
- DisponibilitLibero
- Spese condominiali100
- Cadenza spese condominialiMensili
- ProvinciaLucca
- ComuneViareggio
- IndirizzoVia sant' andrea
- Data18-08-2025 06:03:15
- CodiceEA-E63925