Via Veracini (pressi) PORTA A PRATO / SAN IACOPINO / STATUTO / FORTEZZA quadrilocale 100mq

475.000,00 €
0 Piace
0 Piace

Firenze, San Jacopino - In palazzina/terratetto bifamiliare inizio ´900, in perfetto stato e senza spese condominiali, n.2 Appartamenti in fase di completa ed accurata ristrutturazione, attualmente con possibilità di personalizzazione, in consegna per fine giugno.
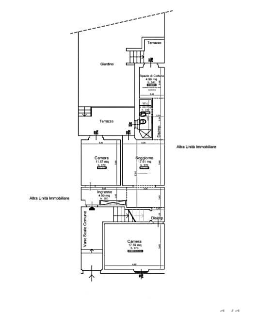
- L´unità al piano terra di circa 80 mq si compone di ingresso, soggiorno e cucinotto con accesso alle terrazze oltre al giardino di 100 mq, disimpegni, due camere e bagno. Richiesta euro 475.000 acquisto da costruttore con possibilità di detrazioni.

- L´unità al primo piano si compone di ingresso, soggiorno con angolo cottura/cucinotto, disimpegni, tre camere e bagno, per circa 100 mq, un balcone e mansarda con lucernaio di circa 20 mq da poter utilizzare volendo come ulteriore camera con wc e la possibilità di una caratteristica terrazza a tasca di circa 10mq.
Richiesta 575mila euro acquisto da costruttore con possibilità di detrazioni.

Posizione strategica, in strada interna e silenziosa, in zona ben servita da tutte le attività commerciali, vicino a scuole, università, supermercati, parchi pubblici, teatro, a pochi minuti dal centro storico fiorentino, dal Parco di San Donato, nuovo centro ´´Manifattura Tabacchi´´ e dalla Tramvia raggiungibile a piedi. - TEL. 334.23.56.902 Classe Energetica: non dichiarata

  • PropostaOffro
  • ContrattoVendita
  • Prezzo475.000,00 €
  • Vani4
  • Piano1
  • Mq giardino100
  • Mq totali100
  • Camere2
  • Bagni1
  • Balconi1
  • Classe energeticaNd
  • StatoNuovo
  • Tipo costruzioneResidenziale
  • CucinaCucinotto
  • TerrazzoSi
  • GiardinoPrivato
  • RiscaldamentoAutonomo
  • ArrediNon arredato
  • ProvinciaFirenze
  • ComuneFirenze
  • IndirizzoVia veracini (pressi)
  • Data13-09-2025 05:54:19
  • CodiceEA-91F12C