Viale Puccini Traversa IX 13 trilocale 77mq

55.000,00 €
0 Piace
0 Piace

Dati annuncio : Vendita Trivani, Lucca

UF00541 FONDO IDEALE PER INVESTIMENTO O utilizzo in proprio.
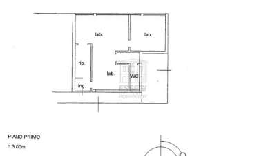
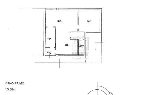
S. Anna, in contesto con spiccata valenza commerciale/artigianale/direzionale in prossimità dell´ ingresso autostradale e di principale arteria viaria, Essegi Immobiliare propone in vendita IN ESCLUSIVA, all´ interno di piccola palazzina anni´90, servita da ascensore, locale ad uso artigianale di circa 70 mq, posto al piano primo e attualmente adibito a laboratorio tecnico, suddiviso in: due vani principali, oltre piccolo ufficio e bagno con antibagno. A corredo due posti auto. Classe energetica G. Ottimo affare. Possibile cambio di destinazione in ufficio.Richiesta €. 55.000 N.B La localizzazione dell´immobile non è esatta per motivi di privacy

  • PropostaOffro
  • ContrattoVendita
  • Prezzo55.000,00 €
  • Anno1988
  • Vani3
  • Numero piani1
  • Mq totali77
  • Bagni1
  • Posti auto2
  • Classe energeticaG
  • Classe energetica (ipe)38.7
  • StatoBuono
  • AscensoreNo
  • TerrazzoNo
  • GiardinoNs
  • CantinaNo
  • RiscaldamentoSingolo a metano
  • BoxSi
  • Spese condominiali80.0
  • ProvinciaLucca
  • ComuneLucca
  • IndirizzoViale puccini traversa ix 13
  • Data13-05-2025 05:06:15
  • CodiceEA-DF8346