Viareggio 7 vani 450mq
500.000,00 €

0 Piace
0 Piace
Dati annuncio : Vendita Eptavani, Viareggio
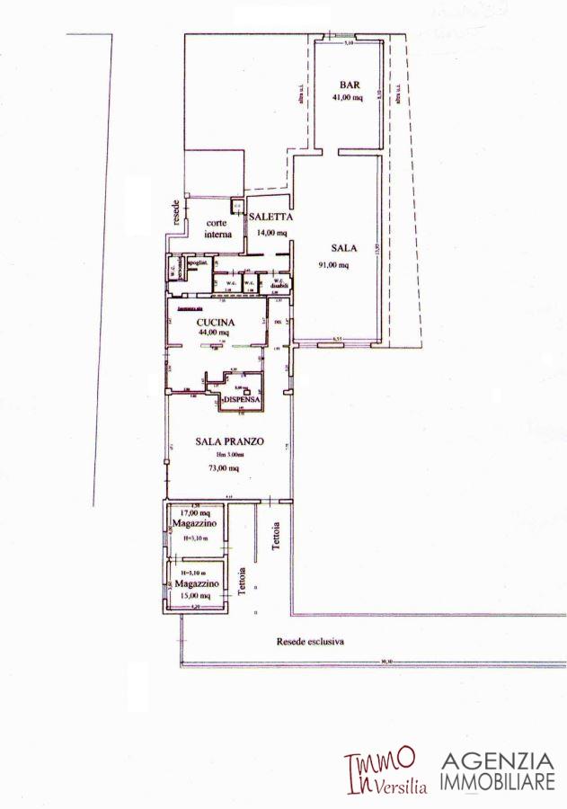
Vendesi immobile ed attività di ristorante-bar-pizzeria a conduzione familiare nel centro di Torre del Lago che può essere modulato secondo le varie necessità. Attualmente si sviluppa su mq 450 che, oltre ai locali tecnici e di servizio alla ristorazione, comprendono un bar fronte strada con forno a legna e attività di asporto, 3 sale da pranzo interne, cucina con dispensa di oltre 50 mq e sul retro con entrata indipendente e giardino mq 120 che possono essere adibiti a civile abitazione.
- PropostaOffro
- ContrattoVendita
- Prezzo500.000,00 €
- Vani7
- Mq totali450
- Bagni4
- Classe energeticaG
- StatoBuono
- Tipo costruzione[commerciale, commerciale]
- RiscaldamentoAutonomo
- ProvinciaLucca
- ComuneViareggio
- Data03-10-2025 05:47:52
- CodiceEA-983373