Villa 10 vani 340mq

Dati annuncio : Vendita Villa, Bolano
-Rif.5164- proponiamo villa di pregio nelle prime colline di Ceparana.
L´abitazione, di 350 mq interni circa, gode di una meravigliosa vista aperta e ottima esposizione ed è suddivisa in due appartamenti abitabili, con la possibilità di unire tutti gli ambienti.
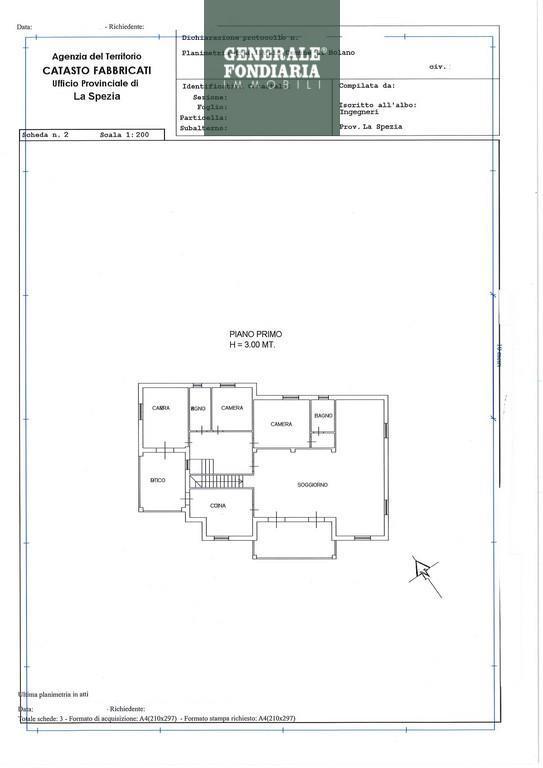
Nel primo appartamento, troviamo l´ingresso in spazioso disimpegno con comode scale che conducono al piano primo dove troviamo un soggiorno di 85 mq circa con zona pranzo e zona relax e dotato di camino e di una terrazza abitabile, cucina anch´essa con terrazza vivibile, un disimpegno porta nella zona notte, ben divisa, con la camera padronale servita dal bagno finestrato con box doccia, due camerette di cui una adibita a studio, bagno finestrato con vasca. Dal disimpegno della zona notte si accede al piano mansardato abitabile che ospita la cucina, un soggiorno, una camera e un vano accatastato sottotetto sfruttabile come ampio stanzino/cabina armadi.
Nel secondo appartamento ingresso in soggiorno doppio di circa 42 mq con accesso al portico, cucina abitabile con accesso alla corte pavimentata, ampio vano finestrato adibito a ripostiglio e lavanderia, disimpegno, spazioso bagno finestrato con vasca, camera matrimoniale con bagno privato dotato di box doccia, cameretta.
La proprietà viene completata da vialetto d´ingresso, box auto singolo, box auto doppio di 27 mq circa con luce e acqua, locale caldaia/cantina, ampia area pavimentata e terreno recintato a piane.
L´indirizzo sull´annuncio è approssimativo. Per visionare l´immobile contattateci al Tel. 0187939990, cell.3456023380,Saremo lieti di fissare un appuntamento. Generale Fondiaria Immobili, Ceparana Via Italia 34/36.
- PropostaOffro
- ContrattoVendita
- Prezzo669.000,00 €
- Vani10
- Mq totali340
- Camere6
- Bagni4
- Classe energeticaD
- CucinaCucina abitabile
- GiardinoPrivato
- Tipologia immobileVilla
- ProvinciaLa spezia
- ComuneBolano
- Data22-06-2025 05:54:48
- CodiceEA-3A9BFC