Villa 5 vani 176mq

Dati annuncio : Vendita Villa, Nova Milanese
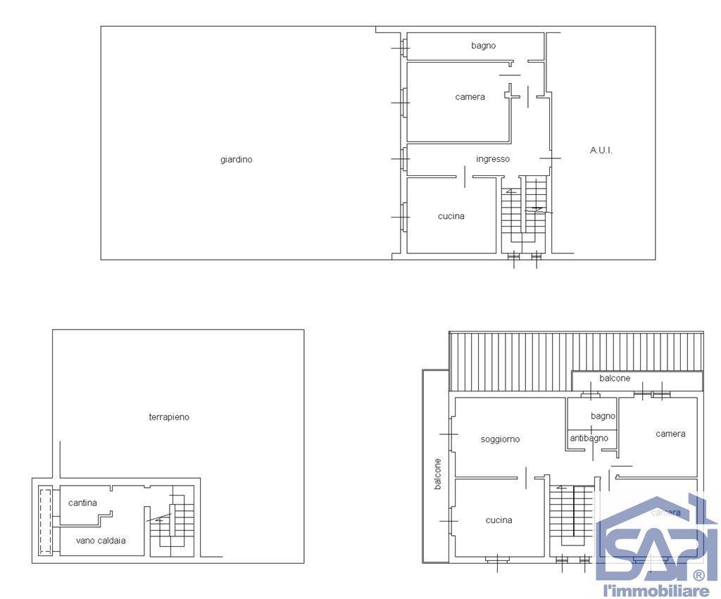
In vendita splendida villa singola completamente ristrutturata, sia esternamente che internamente, con l’utilizzo delle migliori finiture e impianti di ultima generazione. L’abitazione è in classe energetica C, già predisposta per il passaggio alla classe B, garantendo comfort, efficienza e risparmio energetico.
La villa si sviluppa su più livelli:
Piano terra: due camere da letto, di cui una già predisposta per la realizzazione di una cucina al piano, e un bagno finestrato con ampia doccia.
Piano superiore: accessibile tramite elegante scala interna in marmo , si trova un luminoso soggiorno con camino e una cucina abitabile (con possibilità di creare un ambiente unico open space). Entrambi gli ambienti affacciano su un balcone in comune. Completano il piano due camere da letto, di cui una con balcone privato, e un bagno finestrato con spaziosa doccia.
Piano interrato: cantina e locale caldaia.
All’esterno, la proprietà dispone di un giardino privato e di un’area cortilizia sul retro, ideale per la creazione di un orto o di una zona relax.
A completare la soluzione, box auto di c.a. 50 mq collegato direttamente all’abitazione.
Una soluzione ideale per chi cerca indipendenza, comfort e qualità costruttiva in un contesto tranquillo e riservato.
Nova Milanese è una città ben servita, con negozi, supermercati (Esselunga, Eurospin, MD) e scuole di ogni grado. Presenti servizi comunali, farmacia, ufficio postale, banca, biblioteca, centri sportivi e aree verdi. Ottimi collegamenti con Monza, Milano e i comuni limitrofi grazie alle linee autobus e alla vicinanza delle stazioni di Desio e Muggiò. Facilmente accessibile tramite la Tangenziale Nord (A52), la SS36 e l’autostrada A4. Zona tranquilla e completa di tutti i servizi essenziali.
- PropostaOffro
- ContrattoVendita
- Prezzo510.000,00 €
- Vani5
- Mq totali176
- Camere4
- Bagni2
- Balconi1
- Classe energeticaC
- Classe energetica (ipe)15837
- Classe energetica (unità di misura)Kwh/m²a
- CucinaCucina abitabile
- GiardinoPrivato
- Tipologia immobileVilla
- ProvinciaMonza e brianza
- ComuneNova milanese
- Data15-10-2025 05:59:10
- CodiceEA-67061B