Villa 5 vani 300mq

Dati annuncio : Vendita Villa, Padenghe sul Garda
Inserita in una lottizzazione di esclusive ville, a pochi minuti dal centro storico di Padenghe sul Garda, proponiamo villa singola di nuova costruzione con finiture di pregio e giardino privato in fase di ultimazione, su un lotto di circa 1.300 mq.
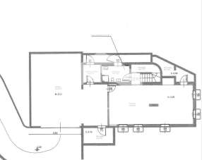
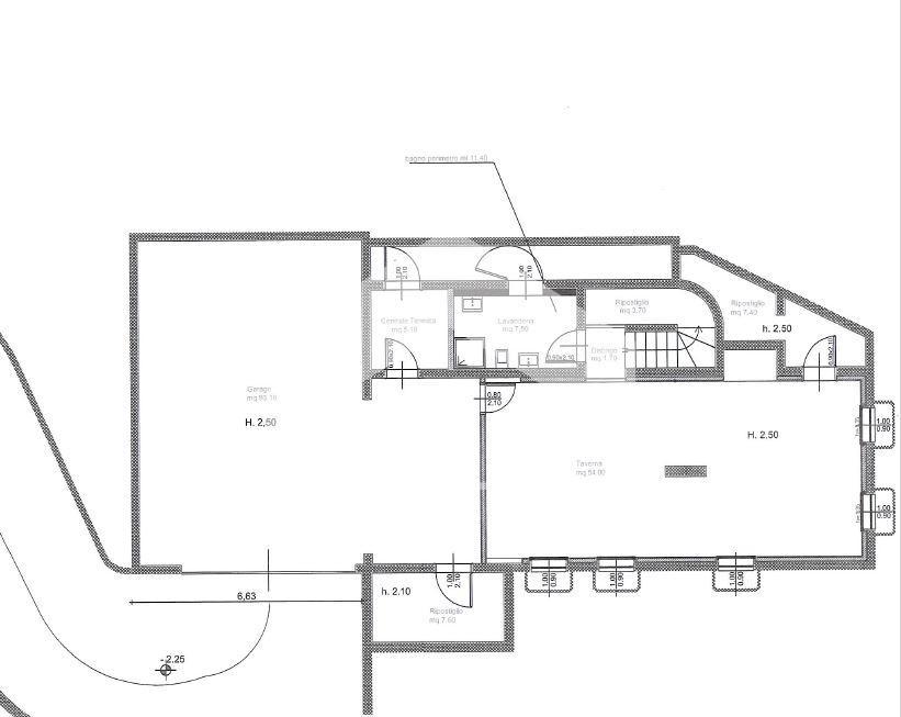
La villa è così composta: al piano terra dall´atrio d´ingresso si accede al salone con cucina a vista, uno spazio open space che si affaccia sul portico (vivibile/abitabile) dal quale è possibile godere della vista dell´ampio giardino che si distribuisce tutto intorno ed in particolare nella parte laterale della villa, dove vi è la possibilità di realizzare una piscina. Al piano superiore, dal quale è possibile ammirare vari scorci del lago di Garda e del monte Baldo, troviamo la camera padronale con bagno privato e balcone, ulteriori tre camere ed un bagno con predisposizione e spazio per vasca idromassaggio. Scendendo al piano interrato grande taverna, lavanderia/bagno, vari ripostigli/zone dispense. Completano la proprietà un´autorimessa di oltre 90 mq, centrale termica e cantina.
La presenza di impianto fotovoltaico e pompa di calore assicurano un risparmio energetico ed un confort ottimale, grazie anche alla presenza del riscaldamento a pavimento, serramenti di ultima generazione con isolamento termico/acustico.
Padenghe sul Garda:
Piccolo e tranquillo paese situato sulla sponda ovest del lago di Garda, incastonato tra il lago e le colline della Valtenesi. Tra incredibili filari di vigne ed uliveti, Padenghe sul Garda, dominata dal suo castello, una fortezza medievale risalente al XXII secolo dalla quale si gode di una vista impareggiabile, é una vera perla nascosta del Lago di Garda.
- PropostaOffro
- ContrattoVendita
- Prezzo1.700.000,00 €
- Vani5
- Mq totali300
- Camere4
- Bagni4
- StatoNuova costruzione
- CucinaCucina a vista
- GiardinoPrivato
- RiscaldamentoA pavimento
- Tipologia immobileVilla
- ProvinciaBrescia
- ComunePadenghe sul garda
- Data13-10-2025 06:11:37
- CodiceEA-061565