Villa 6 vani 335mq

Dati annuncio : Vendita Villa, Monte Marenzo
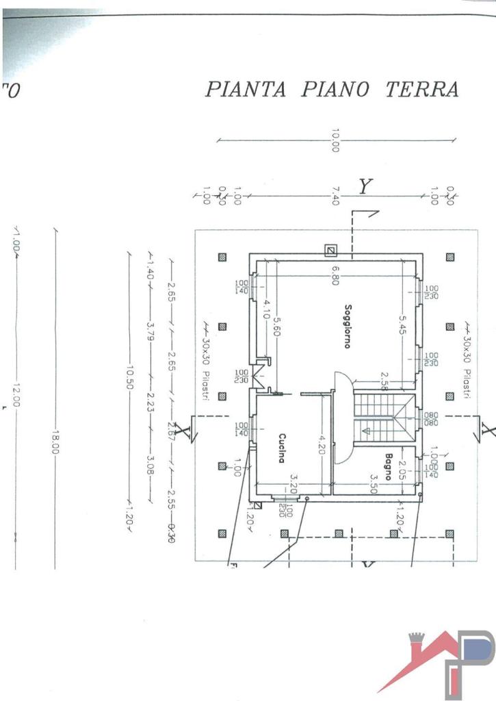
Monte Marenzo, in bellissima posizione a due passi dal centro paese in zona residenziale e tranquilla su strada a fondo chiuso si propone un ampia villa singola, di nuova costruzione venduta al rustico. La casa dispone di un ampio giardino privato di circa Mq.1000 dove volendo é possibile posizionare anche una piscina, l´immobile dagli spazi generosi é così composto; Al piano interrato troviamo l´ampia autorimessa di Circa Mq.44 ideale per il parcheggio di più auto, tramite accesso diretto alla casa troviamo una ampio locale pluriuso/ taverna, un bagno, locale caldaia e un altro locale a disposizione, questo piano é circondato da un´intercapedine sfruttabile che isola l´immobile dal terreno; la scala interna porta al piano terreno dove trovano spazio un ampio soggiorno, una cucina abitabile una bagno, il porticato esterno che affaccia sul giardino, al primo piano ci sono 3 ampie camere da letto di cui la matrimoniale con cabina armadio e un balcone. L´immobile é terminato esternamente mentre l´interno é da rifinire a cura dell´acquirente, gli impianti sono già predisposti. L´immobile é predisposto per raggiungere la classe energetica A+ Ottima soluzione per famiglie in bellissima posizione.
- PropostaOffro
- ContrattoVendita
- Prezzo450.000,00 €
- Vani6
- Mq totali335
- Camere3
- Bagni3
- Balconi1
- StatoNuova costruzione
- CucinaCucina abitabile
- GiardinoPrivato
- Tipologia immobileVilla
- ProvinciaLecco
- ComuneMonte marenzo
- Data20-07-2025 05:36:52
- CodiceEA-AF21A4











