Villa 7 vani 310mq

Dati annuncio : Vendita Villa, Gavirate
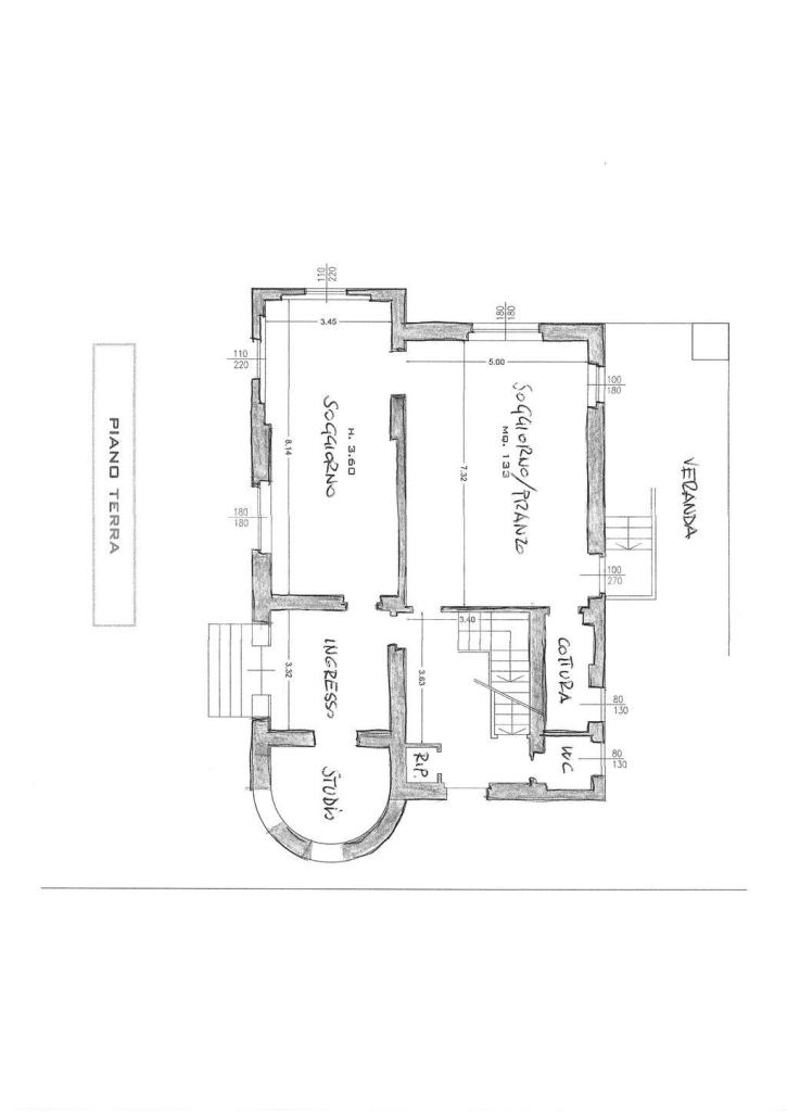
GAVIRATE villa singola edificata negli anni trenta, su due livelli oltre taverna. Un bel giardino soleggiato e piantumato completa la proprietà con box doppio in lunghezza e un capanno per ricovero attrezzi. La villa è composta da un ampio atrio d´ingresso che conduce al vano scala, sulla destra troviamo lo studio e sulla sinistra accediamo al salone doppio con cucina preparazione separato. Una scala porta alla veranda che comunica con il giardino. Al piano superiore è situata la zona notte, una grande camera padronale con cabina armadio, due ulteriori camere di cui una con terrazzo e due bagni. La scala prosegue per arrivare alla mansarda utilizzata come ripostiglio. Una zona taverna con camino nell´interrato con una piccola cantina. L´immobile è in buone condizioni di manutenzione. Serramenti in legno con vetrocamera, pavimenti in ceramica e legno. La posizione semicentrale ma comunque comoda con tutti i servizi. La richiesta è di euro 550.000,00. Classe energetica G ipe 575,19. Per fissare un appuntamento o per ulteriori informazioni contattare Labomaison Immobiliare allo 0332.742229.
- PropostaOffro
- ContrattoVendita
- Prezzo550.000,00 €
- Vani7
- Mq totali310
- Camere3
- Bagni3
- Classe energeticaG
- Classe energetica (ipe)57519
- Classe energetica (unità di misura)Kwh/m²a
- CucinaCucinotto
- TerrazzoSi
- GiardinoPrivato
- BoxBox doppio
- Tipologia immobileVilla
- ProvinciaVarese
- ComuneGavirate
- Data18-08-2025 05:21:08
- CodiceEA-1ECBE2