Villa 7 vani 360mq

Dati annuncio : Vendita Villa, Almese
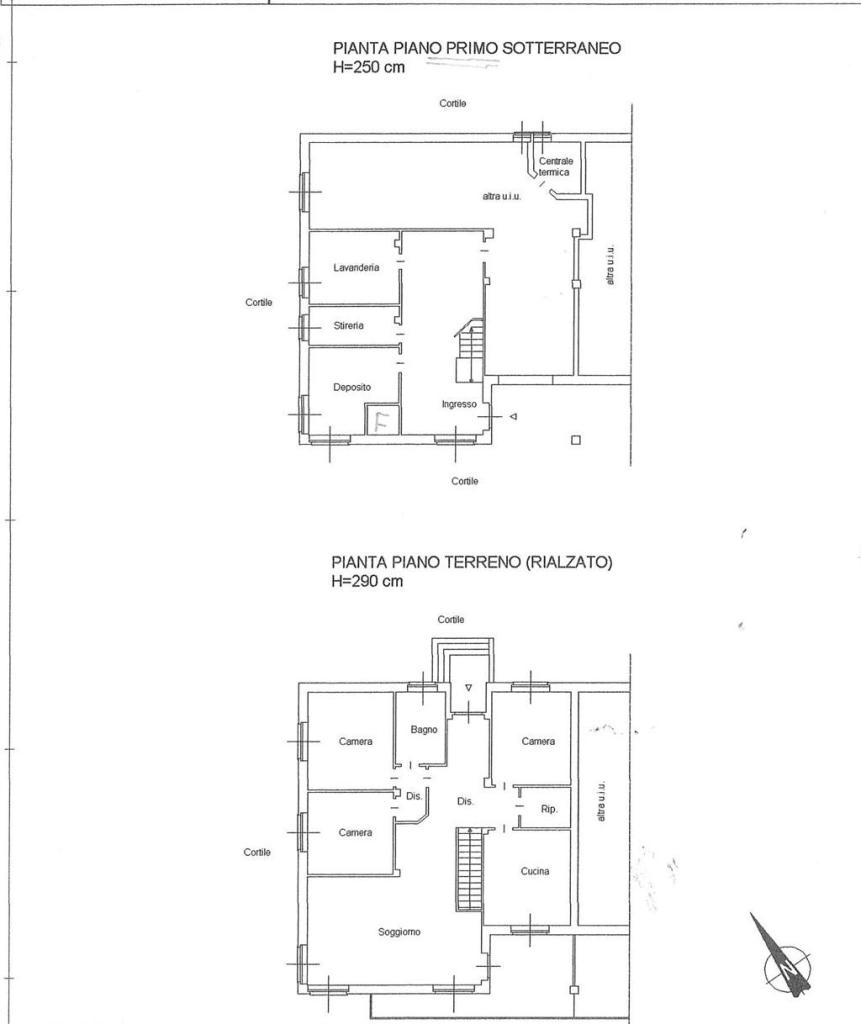
Almese in posizione panoramica non lontano dal centro città, proponiamo in vendita porzione di villa libera su tre lati . Piano Terra: ingresso con scala interna, due locali disimpegno, uno uso tavernetta con forno per pizza, uno sgombero uso lavanderia.al primo piano: collegato con la scala interna ampio salone con camino ventilato, cucina abitabile che affaccia su ampio terrazzo panoramico, disimpegno zona notte padronale con due camere e bagno con vasca con idromassaggio , camera ospiti ripostigli. Al pino superiore un locale sottotetto molto alto non abitabile. completa l´immobile un ampio box auto una cantina e un giardino di circa 1.900 mq circostante.
la casa è dotata di riscaldamento autonomo un pozzo per l´acqua del giardino impianto di antifurto collegato con i Carabinieri. La costruzione è in ottime condizioni le porte interna sono recenti come i pavimenti e gli impianti. BIMAR 01143591 [email protected]
- PropostaOffro
- ContrattoVendita
- Prezzo250.000,00 €
- Vani7
- Mq totali360
- Camere3
- Bagni2
- Classe energeticaC
- CucinaCucina abitabile
- TerrazzoSi
- GiardinoPrivato
- RiscaldamentoAutonomo
- Tipologia immobileVilla
- ProvinciaTorino
- ComuneAlmese
- Data18-08-2025 05:21:08
- CodiceEA-B3DE63