Villa 9 vani 300mq

Dati annuncio : Vendita Villa, Bolano
-Rif.5325- proponiamo in vendita in esclusiva elegante villa signorile, indipendente e di ampia metratura, già suddivisa in due unità abitative autonome, ciascuna con accesso carraio indipendente. Una soluzione ideale per due nuclei familiari o per chi desidera spazi distinti ma vicini.
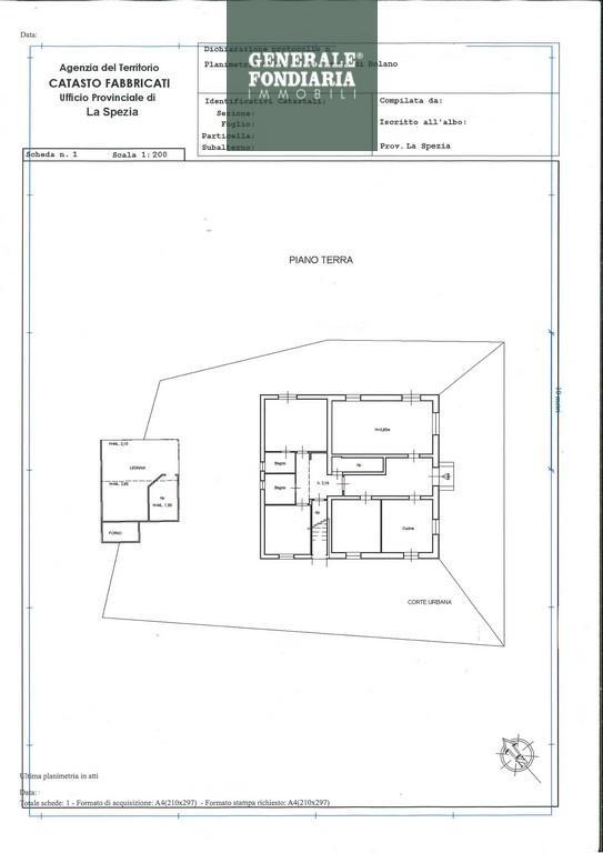
La prima unità si sviluppa al piano terra e si apre su un comodo disimpegno che conduce alla zona giorno: un ampio doppio salone con camino e grandi porte-finestre che affacciano su una corte pavimentata collegata al giardino.
La cucina abitabile ha accesso diretto a un terrazzino riservato.
La zona notte è composta da tre camere da letto, un bagno finestrato con vasca, ripostiglio/lavanderia e un vano sottoscala, ideale come dispensa o spazio di servizio.
La seconda unità, al primo piano, è accessibile da una scala interna con ingresso indipendente.
Qui troviamo un disimpegno, uno studiolo con balcone, un soggiorno luminoso, una cucinetta, un bagno e due ampie camere.
La scala prosegue al secondo piano, dove si sviluppano cinque vani: spazi ampi e versatili, perfetti per realizzare una terza unità o ambienti aggiuntivi personalizzati.
La proprietà è in stato conservativo originario e richiede lavori di ristrutturazione, con ampi margini di personalizzazione.
Inoltre la villa è circondata da un ampio giardino privato, con due accessi carrai e spazio per più posti auto, oltre a una cantina di 54 mq, una legnaia con forno a legna e un rustico su due livelli che amplia ulteriormente le possibilità d’uso.
Questa dimora si presta perfettamente a una divisione in tre appartamenti indipendenti, ma anche a un frazionamento più ampio o a una riqualificazione in chiave multifamiliare o ricettiva.
Gli interni conservano il fascino originale, con affreschi e dettagli d’epoca che rendono l’atmosfera calda e autentica.
Una villa con grande potenziale, pronta per essere valorizzata.
L´indirizzo sull´annuncio è approssimativo. Per visionare l´immobile contattateci al Tel. 0187939990, cell.3456023380,Saremo lieti di fissare un appuntamento. Generale Fondiaria Immobili, Ceparana Via Italia 34/36.
- PropostaOffro
- ContrattoVendita
- Prezzo390.000,00 €
- Vani9
- Mq totali300
- Camere4
- Bagni2
- Classe energeticaG
- CucinaCucina abitabile
- GiardinoPrivato
- Tipologia immobileVilla
- ProvinciaLa spezia
- ComuneBolano
- Data07-10-2025 06:23:02
- CodiceEA-68F38A