Villa a schiera trilocale 149mq

Dati annuncio : Vendita Villa a schiera, Bregnano
ZONA RESIDENZIALE
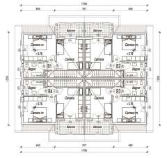
Scopri questa splendida villetta a schiera di testa, un´opzione perfetta per chi cerca comfort e modernità. Con una superficie commerciale di 148 m², questa nuova costruzione, mai abitata, offre spazi luminosi e ben distribuiti. La casa dispone di 3 locali e 2 bagni, ideali per famiglie o per chi desidera avere spazio per ospiti.
Il giardino di proprietà è un vero angolo di paradiso, dove poter trascorrere momenti di relax all´aria aperta. Non dimenticare il box doppio e la cantina al piano interrato, che offrono ulteriore spazio per riporre oggetti e attrezzature. Con una prestazione energetica di 48,5 KWh/mq annuo, questa villetta è anche attenta all´ambiente e ai costi energetici.
Situata in una zona tranquilla, ma ben collegata ai principali servizi, questa villetta è l´ideale per chi cerca una soluzione abitativa moderna e funzionale. Non perdere l´occasione di visitarla!
Se l’immobile non soddisfa le tue esigenze puoi inviarci una richiesta con un messaggio, anche WhatsApp, al numero di cellulare 331.3226375, sarà nostra premura offrirti un servizio a te dedicato. Per qualsiasi informazione puoi venirci a trovare a Saronno in via G.Ferrari n.21/C.
Vuoi conoscere il reale valore del tuo immobile? Un consulente è a tua disposizione e potrà fornirti una relazione dettagliata sull’effettivo valore del tuo immobile basandosi su dati REALI di vendita.
Il presente annuncio ha valore indicativo e non costituisce elemento contrattuale.
NOTA: Si avvertono i Signori clienti che gli indirizzi inseriti all´interno dell´annuncio sono puramente indicativi e non rispecchiano la realtà.
Questa indicazione vuole essere un ausilio nell´indicazione della zona pur rispettando la Privacy dei venditori. Ulteriori chiarimenti possono essere forniti presso la nostra sede o telefonicamente.
- PropostaOffro
- ContrattoVendita
- Prezzo315.000,00 €
- Vani3
- Mq totali149
- Camere2
- Bagni2
- Classe energetica (ipe)485
- Classe energetica (unità di misura)Kwh/m²a
- StatoNuova costruzione
- CucinaCucina abitabile
- GiardinoPrivato
- BoxBox doppio
- Tipologia immobileVilla a schiera
- ProvinciaComo
- ComuneBregnano
- Data24-07-2025 05:23:51
- CodiceEA-3054A2