Villa bifamiliare 6 vani 220mq

Dati annuncio : Vendita Villa bifamiliare, Cesena
CESENA, a Case Finali adiacente alla valle di Rio Marano, si vende una villa bifamiliare in costruzione.
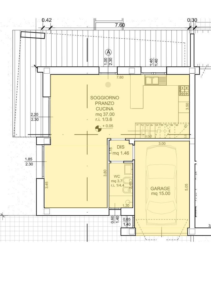
Il progetto di bifamiliare prevede la seguente soluzione disposta su più livelli: al piano terra una zona giorno di oltre 37 mq con cucina a vista e affaccio sul giardino privato, un bagno ospiti disimpegnato e l´autorimessa singola; al primo piano nella zona notte abbiamo tre camere da letto con doppi servizi e doppi balconi; al piano sottotetto vano tecnico e ulteriore vano di 34 mq da adibire a studio o sala hobbies con terrazzo. Soluzione moderna realizzata in edilizia tradizionale e copertura in legno a vista, indipendente, in zona tranquilla e servita. Interessante il giardino con posto auto e il doppio ingresso alla proprietà. Acquisto da privati con imposta di registro. Il prezzo è riferito allo stato grezzo, è disponibile il preventivo per il completamento dei lavori.
Per informazioni acasa_cesena : Andrea Placuzzi tel 328/8255174
NB le presenti informazioni non costituiscono elemento contrattuale
- PropostaOffro
- ContrattoVendita
- Prezzo515.000,00 €
- Vani6
- Mq totali220
- Camere3
- Bagni3
- Classe energeticaA1
- Classe energetica (unità di misura)Kwh/m²a
- CucinaCucina a vista
- TerrazzoSi
- GiardinoPrivato
- Tipologia immobileVilla bifamiliare
- ProvinciaForli-cesena
- ComuneCesena
- Data04-07-2025 05:13:47
- CodiceEA-75D2CF