Villa quadrilocale 260mq

Dati annuncio : Vendita Villa, Seveso
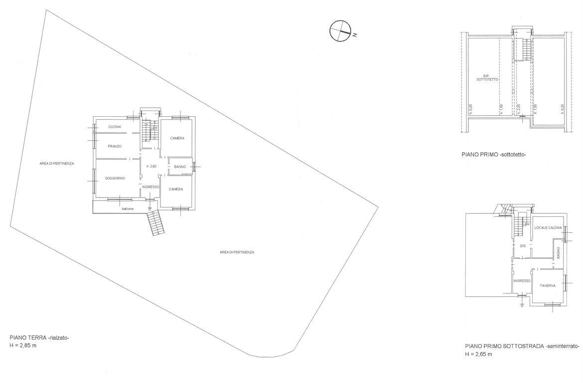
Villa singola di 130 mq per piano con giardino privato piantumato di 920 mq così composta: al piano seminterrato troviamo un box doppio di circa 50 mq, un locale lavanderia con bagno e la taverna; scala a rampa in muratura che porta al piano rialzato composto da soggiorno, cucinotto con finestra, tinello/sala da pranzo, 2 camere matrimoniali e bagno. La stessa scala accede ad un sottotetto ad uso deposito. Zona residenziale comoda con la superstrada Milano-Meda e a 5 minuti dal centro. FINITURE: Facciata in pietra e mattoni. Ceramica nei bagni e in cucina e marmo nel resto, serramenti in legno con tapparelle, predisposizione antifurto, impianto elettrico e serramenti del seminterrato nuovi. Possibilità volumetria residua per realizzare altri 187 mq. Rif. 6063
- PropostaOffro
- ContrattoVendita
- Prezzo428.000,00 €
- Vani4
- Mq totali260
- Camere2
- Bagni2
- Classe energeticaF
- Classe energetica (ipe)38013
- Classe energetica (unità di misura)Kwh/m²a
- CucinaCucinotto
- GiardinoPrivato
- BoxBox doppio
- Tipologia immobileVilla
- ProvinciaMonza e brianza
- ComuneSeveso
- Data06-09-2025 05:06:45
- CodiceEA-9CE63E